
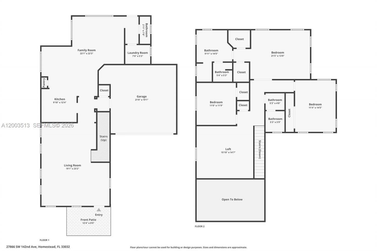
Dont miss this spacious 3BR/2.5BA home in desirable Mandarin Lakes, featuring high ceilings, tile floors, and a 2 car Garage, master bathroom with Roman tub and spacious walking closet, has a den that can be converted into a 4th bedroom, enjoy a beautifully remodeled kitchen with granite countertops, plus a private backyard with tiki hut and serene lake views-perfect for relaxing or entertaining.
Courtesy of
Agency Name: Imag Realty LLC
Agency Phone: 786-718-7692
Agent Name: Maryela Mendieta
Presented by
Agent Name: Jackie Infante
Agent Phone: 305.804.7744
Agency Title: The Keyes Company
Request Info
Send an email with a link to
27866 SW 142nd Ave , Homestead, FL 33032.
Email 27866 SW 142nd Ave , Homestead, FL 33032
Thank you for your inquiry! As a thank you, we have a Special Mortgage Offer for You.
We would like to provide you a free, no-obligation, home loan pre-approval review.